Hồ sơ đề xuất cấp giấy phép môi trường nhà máy sản xuất bao bì từ plastic

Hồ sơ đề xuất cấp giấy phép môi trường (GPMT) nhà máy sản xuất bao bì từ plastic, găng tay nhựa và áo choàng y tế: 30.000 tấn sản phẩm/năm; Cho thuê nhà xưởng 5 tầng diện tích khoảng 8.700 m2.

Ngày đăng: 03-10-2025

361 lượt xem

Chương I. THÔNG TIN CHUNG VỀ DỰ ÁN.. 6

1. Tên chủ dự án. 6

2. Tên dự án..............................................8
3. Công suất, công nghệ, sản phẩm sản xuất của dự án. 8

3.1. Công suất hoạt động của dự án. 8

3.2. Công nghệ sản xuất của dự án. 8

3.3. Sản phẩm của dự án. 13

4. Nguyên liệu, nhiên liệu, vật liệu, phế liệu, điện năng, hóa chất sử dụng, nguồn cung cấp điện, nước của dự án. 24

5. Các thông tin khác liên quan đến dự án. 27

5.1. Các hạng mục công trình của dự án. 27

5.2. Máy móc thiết bị 28

5.3. Tiến độ thực hiện dự án. 30

5.4. Vốn đầu tư. 30

5.5. Tổ chức quản lý và thực hiện dự án. 30

Chương II. SỰ PHÙ HỢP CỦA DỰ ÁN ĐẦU TƯ VỚI QUY HOẠCH, KHẢ NĂNG CHỊU TẢI CỦA MÔI TRƯỜNG.. 32

1. Sự phù hợp của dự án đầu tư với quy hoạch bảo vệ môi trường quốc gia, quy hoạch tỉnh, phần vùng môi trường. 32

2. Sự phù hợp của dự án đầu tư đối với khả năng chịu tải của môi trường. 33

CHƯƠNG III. ĐÁNH GIÁ HIỆN TRẠNG MÔI TRƯỜNG NƠI THỰC HIỆN DỰ ÁN ĐẦU TƯ.. 35

Chương IV. ĐÁNH GIÁ, DỰ BÁO TÁC ĐỘNG MÔI TRƯỜNG CỦA DỰ ÁN DẦU TƯ VÀ ĐỀ XUẤT CÁC CÔNG TRÌNH, BIỆN PHÁP BẢO VỆ MÔI TRƯỜNG.. 36

CHƯƠNG V. PHƯƠNG ÁN CẢI TẠO, PHỤC HỒI MÔI TRƯỜNG, PHƯƠNG ÁN BỒI HOÀN ĐA DẠNG SINH HỌC .............................................................................64

CHƯƠNG VI. NỘI DUNG ĐỀ NGHỊ CẤP GIẤY PHÉP MÔI TRƯỜNG.. 70

1. Nội dung đề nghị cấp phép đối với nước thải 70

2. Nội dung đề nghị cấp phép đối với khí thải 72

3. Nội dung đề nghị cấp phép đối với tiếng ồn, độ rung. 72

4. Nội dung về quản lý chất thải 74

Chương VII. KẾ HOẠCH VẬN HÀNH THỬ NGHIỆM CÔNG TRÌNH XỬ LÝ CHẤT THẢI VÀ CHƯƠNG TRÌNH QUAN TRẮC MÔI TRƯỜNG CỦA DỰ ÁN.. 77

1. Kế hoạch vận hành thử nghiệm công trình xử lý chất thải 77

1.1. Thời gian dự kiến vận hành thử nghiệm.. 77

1.2. Kế hoạch quan trắc chất thải, đánh giá hiệu quả xử lý của các công trình, thiết bị xử lý chất thải 77

2. Chương trình quan trắc chất thải (tự động, liên tục và định kỳ) theo quy định của pháp luật 79

2.1. Chương trình quan trắc môi trường định kỳ. 79

2.2. Chương trình quan trắc tự động, liên tục chất thải 79

2.3.  Hoạt động quan trắc môi trường định kỳ, quan trắc môi trường tự động, liên tục khác theo quy định của pháp luật có liên quan hoặc theo đề xuất của chủ dự án. 80

3. Kinh phí thực hiện quan trắc môi trường hằng năm.. 80

Chương VIII. CAM KẾT CỦA CHỦ DỰ ÁN.. 81

PHỤ LỤC BÁO CÁO 83

Chương I

THÔNG TIN CHUNG VỀ DỰ ÁN

1. Tên chủ dự án đầu tư

CÔNG TY CỔ PHẦN ..... SẢN XUẤT CÔNG NGHIỆP

- Địa chỉ văn phòngố .............Minh Khai, Phường Vĩnh Tuy, Quận Hai Bà Trưng, Thành phố Hà Nội, Việt Nam

- Người đại diện theo pháp luật của chủ dự án: Ông......

- Sinh ngày: ..........   Quốc tịch: Việt Nam

- Căn cước công dân số: .......

- Ngày cấp: ......

- Nơi cấp: Cục cảnh sát Quản lý hành chính về trật tự xã hội.

- Chức danh: Tổng Giám đốc

- Địa chỉ thường trú: ......Vinhomes, phường Phúc Lợi, quận Long Biên, thành phố Hà Nội, Việt Nam.

- Địa chỉ liên lạc: ..........Vinhomes, phường Phúc Lợi, quận Long Biên, thành phố Hà Nội, Việt Nam.

- Điện thoại: .........    Fax:                            

- Email: .......

- Giấy chứng nhận đăng ký doanh nghiệp công ty cổ phần số...... do Phòng đăng ký kinh doanh - Sở kế hoạch và đầu tư thành phố Hà Nội cấp lần đầu ngày 08/08/2023, đăng ký thay đổi lần thứ 1 ngày 21/01/2025.

- Giấy chứng nhận đăng ký đầu tư mã số dự án ...... do Sở Tài Chính tỉnh Hưng Yên cấp chứng nhận lần đầu ngày 22/9/2025.

2. Tên dự án đầu tư

Nhà máy sản xuất bao bì từ plastic

* Địa điểm thực hiện dự án đầu tư: Cụm công nghiệp Quán Đỏ, xã Đoàn Đào, tỉnh Hưng Yên.

Bảng 1.1. Bảng toạ độ lô đất

TIÊU ĐIỂM

X (M)

Y (M)

- Lô đất: A

- Diện tích: 35.000,3 m2

N1

2291076.171

566791.044

N2

2291153.825

566957.250

N3

2291173.764

566964.491

N4

2291307.398

566902.055

N5

2291314.639

566882.116

N6

2291236.985

566715.909

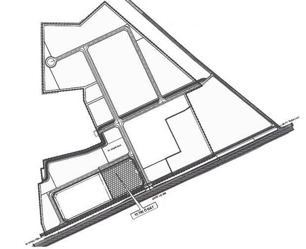
Hình 1.1. Sơ đồ vị trí khu đất thực hiện dự án

- Tổng diện tích đất thực hiện dự án: 35.000,3 m2.

Sơ đồ vị trí, mặt bằng tổng thể của khu đất thực hiện dự án đính kèm phần phụ lục.

* Cơ quan thẩm định thiết kế xây dựng, cấp các loại giấy phép có liên quan đến môi trường của dự án đầu tư:

+ Cơ quan thẩm định thiết kế xây dựng của dự án là Sở Xây dựng tỉnh Hưng Yên;

+ Cơ quan cấp Giấy phép môi trường của dự án là UBND tỉnh Hưng Yên.

* Quy mô của dự án:

- Quy mô của dự án được phân loại theo tiêu chí quy định của pháp luật về đầu tư công: Dự án thuộc lĩnh vực công nghiệp, với tổng mức đầu tư là: 1.098.018.700.000 đồng nên dự án thuộc nhóm B theo Luật Đầu tư công.

- Dự án được thực hiện trong Cụm công nghiệp Quán Đỏ, xã Đoàn Đào, tỉnh Hưng Yên không có yếu tố nhạy cảm về môi trường.

- Loại hình sản xuất, kinh doanh, dịch vụ: Mục tiêu của dự án là sản xuất các sản phẩm từ plastic, chi tiết: Sản xuất bao bì từ plastic; Sản xuất các sản phẩm khác từ plastic (Sản xuất từ hạt nhựa nguyên sinh, không tái chế nhựa); Kinh doanh bất động sản, chi tiết: Cho thuê nhà xưởng. Vì vậy, dự án không thuộc loại hình sản xuất, kinh doanh, dịch vụ có nguy cơ gây ô nhiễm môi trường quy định tại Phụ lục II, Nghị định 05/2025/NĐ-CP.

- Phân nhóm dự án đầu tư:

Mục tiêu sản xuất của dự án là: sản xuất các sản phẩm từ plastic, chi tiết: Sản xuất bao bì từ plastic; Sản xuất các sản phẩm khác từ plastic (Sản xuất từ hạt nhựa nguyên sinh, không tái chế nhựa); Kinh doanh bất động sản, chi tiết: Cho thuê nhà xưởng.

Đối chiếu theo quy định của Luật Bảo vệ môi trường năm 2020 và Nghị định số 05/2025/NĐ-CP thì dự án có tiêu chí môi trường thuộc dự án nhóm III (có số thứ tự 2, mục II, phụ lục V ban hành kèm theo Nghị định số 05/2025/NĐ-CP).

Căn cứ Khoản 4, Điều 41, Luật bảo vệ môi trường 2020 và Điều 26 Nghị định số 131/2025/NĐ-CP Quy định phân định thẩm quyền của chính quyền địa phương 02 cấp trong lĩnh vực quản lý nhà nước của Bộ Nông nghiệp và Môi trường. Dự án thuộc thẩm quyền cấp Giấy phép môi trường của UBND tỉnh Hưng Yên.

3. Công suất, công nghệ, sản phẩm sản xuất của dự án

3.1. Công suất hoạt động của dự án

* Mục tiêu, công suất của dự án

TT

Mục tiêu hoạt động

Mã ngành theo VSIC

1

Sản xuất các sản phẩm từ plastic

Chi tiết: Sản xuất bao bì từ plastic; Sản xuất các sản phẩm khác từ plastic (Sản xuất từ hạt nhựa nguyên sinh, không tái chế nhựa).

2220

2

Kinh doanh bất động sản

Chi tiết: Cho thuê nhà xưởng

6810

Quy mô dự án: Sản xuất bao bì plastic, găng tay nhựa và áo choàng y tế: 30.000 tấn sản phẩm/năm; Cho thuê nhà xưởng 5 tầng diện tích khoảng 8.700 m2 (Cho thuê ngành nghề sản xuất các sản phẩm tương tự từ plastic (Sản xuất từ hạt nhựa nguyên sinh, không tái chế nhựa)).

3.2. Công nghệ sản xuất của dự án

a. Quy trình sản xuất sản bao bì từ plastic

Hình 1.2. Sơ đồ quy trình sản xuất sản xuất bao bì từ plastic

Thuyết minh quy trình:

- Kiểm tra nguyên liệu:

Nguyên liệu đầu vào nhập về dự án là các hạt nhựa, hạt màu. Sau khi nhập về nhà máy sẽ được nhân viên kiểm tra kỹ lưỡng. Đối với những nguyên liệu không đạt yêu cầu sẽ được loại ra và trả lại nhà cung cấp, những nguyên liệu đảm bảo yêu cầu được vận chuyển về kho chứa để bảo quản và chuẩn bị cho quá trình sản xuất.

- Công đoạn trộn:

Sau khi nhận được đơn đặt hàng của khách, phòng sản xuất sẽ đề xuất cấp nguyên vật liệu và tập kết theo vị trí quy định. Công nhân trộn thực hiện trộn nguyên liệu theo tỷ lệ trên lệnh sản xuất. Kiểm soát chất lượng trộn cân theo đúng số lượng. Máy trộn được thực hiện tự động theo chương trình cài đặt sẵn. Chuyển nguyên liệu đã trộn ra sau máy thổi để cấp liệu cho máy thổi.

- Thổi màng:

Quá trình đùn thổi màng nhựa được thực hiện trong máy đùn thổi màng. Đầu tiên, công nhân sẽ tiến hành đưa hạt nhựa nguyên sinh vào phễu của máy đùn để gia nhiệt và hóa dẻo hạt nhựa. Trong máy đùn bố trí một hoặc hai trục vít xoắn có chiều sâu rãnh vít giảm dần theo từng đoạn từ chuôi trục đến đầu trục, quay bên trong xy lanh. Bao quanh xy lanh máy đùn lắp hệ thống gia nhiệt. Khi trục vít quay, hạt nhựa được gia nhiệt, được ép nhuyễn và cuối cùng được đùn qua đầu đùn.

Hệ thống gia nhiệt được điều chỉnh phân bố xung quanh xi lanh thành các vùng gia nhiệt, mỗi vùng cho một nhiệt độ xác định và có thể điều chỉnh được. Quá trình vận chuyển, làm dẻo và làm nhuyễn hạt nhựa được thực hiện trong khoảng không giữa trục vít và xilanh. Trục vít được chia làm nhiều vùng công tác.

Sau khi ra khỏi máy đùn, nhựa dẻo được đẩy qua một khe tạo hình vành khuyên, thường bố trí thẳng đứng, để tạo thành một ống thành mỏng. Khi ra khỏi đầu tạo hình, màng được thổi phồng lên nhờ hệ thống khí nén dẫn vào bên trong. Khí này có ống dẫn ra để đảm bảo sự ổn định của áp lực bên trong. Chiều dày ban đầu của phôi màng do khe hở giữa khuôn và lõi quyết định. Phía trên khuôn người ta bố trí một vòng không khí tốc độ cao để làm nguội màng nhựa nóng. Ống màng sau đó tiếp tục đi lên, tiếp tục được làm lạnh đến khi nó đi qua con lăn và được làm dẹp lại tạo thành một màng đôi. Hệ thống các con lăn sau đó sẽ đưa màng đôi ra khỏi tháp đùn và cuộn lại thành cuộn.

- Công đoạn in:

Sau quá trình thổi màng, màng đôi có thể để nguyên hay cắt thành 2 màng đơn chiếc cuộn lại rồi đưa vào máy in. Tại công đoạn này, tùy theo kế hoạch sản xuất của dự án mà cán bộ công nhân viên sẽ tiến hành in các logo, hình, font chữ với màu sắc khác nhau lên màng nhựa. Màng nhựa được in logo, hình, font chữ bằng công nghệ in Flexo.

Phương pháp in Flexo là phương pháp in trực tiếp do có bản in nổi, mực in được cấp cho khuôn in nhờ trục anilox. Trục anilox là một trục kim loại, bề mặt được khắc lõm nhiều ô nhỏ (cell). Trong quá trình in, trục được nhúng một phần trong máng mực, mực sẽ lọt vào các ô trên bề mặt trục, phần mực nằm trên bề mặt sẽ được dao gạt mực gạt đi. Sau đó khuôn in sẽ tiếp xúc với trục và nhận mực từ trong các cell trên bề mặt trục in.

Sản phẩm sau khi in xong sẽ được chuyển sang công đoạn cắt dán nhiệt, gắn dây rút.

- Công đoạn cắt dán nhiệt, gắn dây rút:

Công nhân vận hành máy cắt thực hiện cắt sản phẩm theo quy cách được mô tả theo lệnh sản xuất và hướng dẫn thực hiện.

Đối với dòng sản phẩm túi có quai sẽ được cắt tạo hình quai. Còn đối với dòng sản phẩm túi rút dây sẽ được gắn thêm dây rút. Sau đó được dán nhiệt hoàn thiện sản phẩm. Công đoạn này được thực hiện tự động và tích hợp trên máy cắt.

Bavia phát sinh từ công đoạn cắt này sẽ được thu gom chuyển về khu vực tạo hạt nhựa.

- Công đoạn đóng gói:

Công nhân hoàn thiện thực hiện đóng gói bao bì, hộp carton theo tiêu chuẩn chất lượng và hướng dẫn hoàn thiện.

- Hộp thành phẩm sau khi được hoàn thiện sẽ được xếp lên pallet theo hướng dẫn thực hiện.

- Nhập kho:

Công nhận hậu cần tập kết các pallet thành phẩm tại vị trí theo quy định để chờ nhập kho. Thành phẩm được bảo quản trong kho NM chờ xuất container.

- Xuất hàng: Căn cứ theo đơn hàng nhận từ khách hàng, phòng bán hàng (PPC) sẽ tiến hành làm chứng từ, đóng hàng, hoàn tất các thủ tục liên quan để xuất hàng đúng theo yêu cầu của khách hàng.

b. Quy trình sản xuất các sản phẩm khác từ plastics

b1. Quy trình sản xuất áo choàng y tế:

Hình 1.3. Sơ đồ quy trình sản xuất áo choàng y tế

Thuyết minh quy trình:

- Kiểm tra nguyên liệu:

Nguyên liệu đầu vào nhập về dự án là các hạt nhựa, hạt màu. Sau khi nhập về nhà máy sẽ được nhân viên kiểm tra kỹ lưỡng. Đối với những nguyên liệu không đạt yêu cầu sẽ được loại ra và trả lại nhà cung cấp, những nguyên liệu đảm bảo yêu cầu được vận chuyển về kho chứa để bảo quản và chuẩn bị cho quá trình sản xuất.

- Công đoạn trộn:

Sau khi nhận được đơn đặt hàng của khách, phòng sản xuất sẽ đề xuất cấp nguyên vật liệu và tập kết theo vị trí quy định. Công nhân trộn thực hiện trộn nguyên liệu theo tỷ lệ trên lệnh sản xuất. Kiểm soát chất lượng trộn cân theo đúng số lượng. Máy trộn được thực hiện tự động theo chương trình cài đặt sẵn. Chuyển nguyên liệu đã trộn ra sau máy cán màng để cấp liệu cho máy cán màng.

- Cán màng:

Công nhân vận hành máy cán màng, cán ra cuộn bán thành phẩm theo lệnh sản xuất và tiêu chí chất lượng.

- Công đoạn cắt dập định hình:

Công nhân vận hành máy dập hình, ra từng tập sản phẩm theo quy cách được mô tả theo lệnh sản xuất, và hướng dẫn thực hiện.

Bavia thải phát sinh từ công đoạn này sẽ được thu gom chuyển về khu vực tạo hạt nhựa.

- Công đoạn dán, gấp:

Công nhân dán phần tay và thân áo - chuyển qua gấp thành hình vuông để đóng gói bao bì.

- Công đoạn đóng gói:

Công nhân hoàn thiện sẽ đóng gói theo cái vào 1 túi bao ngoài, sau đó đóng gói theo tập số cái vào thùng caton.

- Nhập kho:

Thành phẩm được bảo quản trong kho nhà máy chờ xuất container.

- Xuất hàng: Căn cứ theo đơn hàng nhận từ khách hàng, phòng bán hàng (PPC) sẽ tiến hành làm chứng từ, đóng hàng, hoàn tất các thủ tục liên quan để xuất hàng đúng theo yêu cầu của khách hàng.

b2. Quy trình sản xuất găng tay:

Hình 1.4. Sơ đồ quy trình sản xuất găng tay

Thuyết minh quy trình:

- Kiểm tra nguyên liệu:

Nguyên liệu đầu vào nhập về dự án là các hạt nhựa, hạt màu. Sau khi nhập về nhà máy sẽ được nhân viên kiểm tra kỹ lưỡng. Đối với những nguyên liệu không đạt yêu cầu sẽ được loại ra và trả lại nhà cung cấp, những nguyên liệu đảm bảo yêu cầu được vận chuyển về kho chứa để bảo quản và chuẩn bị cho quá trình sản xuất.

- Công đoạn trộn:

Sau khi nhận được đơn đặt hàng của khách, phòng sản xuất sẽ đề xuất cấp nguyên vật liệu và tập kết theo vị trí quy định. Công nhân trộn thực hiện trộn nguyên liệu theo tỷ lệ trên lệnh sản xuất. Kiểm soát chất lượng trộn cân theo đúng số lượng. Máy trộn được thực hiện tự động theo chương trình cài đặt sẵn. Chuyển nguyên liệu đã trộn ra sau máy cán màng để cấp liệu cho máy cán màng

- Cán màng:

Công nhân vận hành máy thổi màng, cán màng, làm ra cuộn bán thành phẩm theo lệnh sản xuất và tiêu chí chất lượng.

- Công đoạn cắt dập định hình:

Công nhân vận hành máy cắt dán đưa các cuộn lên máy cắt, cắt dán ra sản phẩm theo quy cách. được mô tả theo lệnh sản xuất, và hướng dẫn thực hiện.

Bavia thải phát sinh từ công đoạn này sẽ được thu gom chuyển về khu vực tạo hạt nhựa. Hạt nhựa thu được sẽ được trộn một phần theo tỉ lệ thích hợp ở công đoạn trộn phía trên.

- Công đoạn dán, gấp:

Công nhân vận hành máy lấy sản phẩm đóng thành bao gói theo lệch sản xuất và tiêu chí mẫu mã của khách hàng.

- Công đoạn đóng gói:

Công nhân hoàn thiện sẽ đóng gói, theo hộp nhỏ vào thùng caton.

- Nhập kho:

Thành phẩm được bảo quản trong kho nhà máy chờ xuất container.

- Xuất hàng: Căn cứ theo đơn hàng nhận từ khách hàng, phòng bán hàng (PPC) sẽ tiến hành làm chứng từ, đóng hàng, hoàn tất các thủ tục liên quan để xuất hàng đúng theo yêu cầu của khách hàng.

c. Quy trình tạo hạt nhựa

Hình 1.5. Quy trình tạo hạt nhựa

Thuyết minh quy trình:

Bavia phát sinh từ quá trình sản xuất túi nilon, găng tay, áo choàng y tế được thu gom chuyển về khu vực tạo hạt nhựa.

- Băm nhỏ:

Bavia nhựa được đưa vào buồng máy băm tự động, khép kín. Sau đó được đẩy sang khu vực gia nhiệt, đùn sợi.

- Gia nhiệt, đùn sợi:

Các mảnh nhựa sau khi băm xong sẽ được đẩy về buồng gia nhiệt làm nóng chảy mảnh nhựa. Sau đó được đùn tạo thành dạng sợi.

- Làm mát:

Sợi nhựa sẽ được làm mát bằng bằng gió quạt. Sau đó chạy sang khu vực cắt tạo hạt.

- Cắt hạt:

Sợi nhựa sẽ được cắt liên tục tạo thành các hạt nhựa. Hạt nhựa được cho quay lại trộn với tỉ lệ thích hợp với nguyên liệu nhựa nguyên sinh để sản xuất thành các sản phẩm nilon, găng tay, áo choàng y tế.

Quá trình tạo hạt nhựa được thực hiện trong máy tạo hạt khép kín.

d. Quy trình cho thuê nhà xưởng

Hình 1.6. Quy trình cho thuê nhà xưởng

Thuyết minh quy trình:

Công ty Cổ phần STAVIAN sản xuất công nghiệp sẽ ký hợp đồng thuê văn phòng, nhà xưởng với đơn vị có nhu cầu thuê. Quá trình hoạt động của đơn vị thuê văn phòng, nhà xưởng nằm trong khuôn viên Dự án sẽ phát sinh thêm các loại chất thải từ quá trình sản xuất, sinh hoạt của các đơn vị thuê nhà xưởng. Các loại chất thải phát sinh này sẽ do chính đơn vị thuê nhà xưởng phải có trách nhiệm quản lý và xử lý theo quy định của pháp luật đảm bảo các quy chuẩn, tiêu chuẩn Việt Nam về môi trường.

Công ty Cổ phần STAVIAN sản xuất công nghiệp chỉ xử lý nước thải sinh hoạt phát sinh cho các đơn vị thuê văn phòng, nhà xưởng. Các nguồn thải phát sinh khác như: khí thải, nước thải sản xuất, CTR, CTNH… của các đơn vị thuê nhà xưởng sẽ do chính đơn vị thuê nhà xưởng quản lý và được trình bày chi tiết trong hồ sơ môi trường của các đơn vị thuê nhà xưởng đó tự tạo lập.

Dự kiến Chủ dự án sẽ có các đơn vị thuê nhà xưởng với lĩnh vực hoạt động: Kho lưu giữ hàng hóa, sản xuất  sản phẩm khác từ plastics, màng nhôm và sản xuất bột Compound ... không phát sinh nước thải sản xuất. Khi đi vào hoạt động sẽ có khoảng 2.687 người (trong đó: Chủ dự án là 1.507 người, của đơn vị thuê xưởng là 1180 người).

3.3. Sản phẩm của dự án

Bảng 1.2: Danh mục sản phẩm của dự án

STT

Tên sản phẩm

Khối lượng

1

Bao bì từ plastic

30.000 tấn/năm

2

Sản phẩm khác từ plastics (găng tay nhựa và áo choàng y tế)

3

Nhà xưởng cho thuê 5 tầng

8.000 m2

4. Nguyên liệu, nhiên liệu, vật liệu, phế liệu, điện năng, hóa chất sử dụng, nguồn cung cấp điện, nước của dự án

a. Nhu cầu sử dụng nguyên liệu, nhiên liệu, hóa chất của dự án cho năm sản xuất ổn định

Nhu cầu sử dụng các nguyên liệu, nhiên liệu, hóa chất trong năm sản xuất ổn định của dự án được thể hiện chi tiết qua bảng sau:

Bảng 1.3: Bảng nhu cầu sử dụng nguyên liệu, vật liệu, hóa chất phục vụ quá trình sản xuất của dự án

STT

Tên nguyên vật liệu, hóa chất

Đơn vị

Khối lượng

Công đoạn sử dụng

Nguồn gốc

1

Hạt nhựa nguyên sinh HDPE, LDPE, LLDPE

Tấn/năm

28.815

Trộn

Nhập khẩu

1.1

Hạt nhựa nguyên sinh HDPE

Tấn/năm

19.324

Trộn

Nhập khẩu

1.2

Hạt nhựa nguyên sinh LDPE

Tấn/năm

1.939

Trộn

Nhập khẩu

1.3

Hạt nhựa nguyên sinh LLDPE

Tấn/năm

7.552

Trộn

Nhập khẩu

 

Hạt nhựa tái sinh HDPE, LDPE, LLDPE

Tấn/năm

7.427

Trộn

Quá trình tạo hạt từ bavia nhựa tại nhà máy

2

Hạt màu

Tấn/năm

50

Trộn

Việt Nam

3

Hạt chống dính

Tấn/năm

8,2

Trộn

Việt Nam

4

Hạt chống tĩnh điện

Tấn/năm

0,2

Trộn

Việt Nam

5

Hạt tăng dính

Tấn/năm

0,1

Trộn

Việt Nam

6

Hạt taical

Tấn/năm

603

Trộn

Việt Nam

7

Hạt chống ẩm

Tấn/năm

1,7

Đóng gói

Việt Nam

8

Hạt phụ gia tăng bóng

Tấn/năm

0,1

Trộn

Việt Nam

9

Thùng carton

Tấn/năm

230

Đóng gói

Việt Nam

10

Hộp offset

Tấn/năm

127

Đóng gói

Việt Nam

11

Bìa lót

Tấn/năm

21

Đóng gói

Việt Nam

12

Bao dứa đựng hạt tạo, thành phẩm

Tấn/năm

1,2

Đóng gói

Việt Nam

13

Chi khâu bao

Tấn/năm

0,06

Đóng gói

Việt Nam

14

Lõi giấy

Tấn/năm

15

Đóng gói

Việt Nam

15

Tem decal

Tấn/năm

0,34

Đóng gói

Việt Nam

16

Dây đai

Tấn/năm

0,15

Đóng gói

Việt Nam

17

Keo nến

Tấn/năm

0,9

Đóng gói

Việt Nam

18

Băng dính

Tấn/năm

8,1

Đóng gói

Việt Nam

19

Bao bì ngoài PP

Tấn/năm

90

Đóng gói

Việt Nam

20

Bao bì ngoài PE

Tấn/năm

23

Đóng gói

Việt Nam

21

Dây kẽm

Tấn/năm

2,8

Đóng gói

Việt Nam

22

Dung môi

Tấn/năm

7,9

In

Việt Nam

23

Mực in

Tấn/năm

3,5

In

Việt Nam

 

Tổng

Tấn/năm

30.009

 

 

Nhu cầu sử dụng hóa chất cho HTXL NTSH của dự án như sau:

STT

Hóa chất sử dụng cho HTXL NTSH

1

Methanol

Kg/năm

2.250

Bể thiếu khí

Việt Nam

2

PAC

Kg/năm

2.160

Bể hiếu khí

Việt Nam

3

NaOH

Kg/năm

2.700

Bể hiếu khí

Việt Nam

4

NaOCl

Kg/năm

540

Bể khử trùng

Việt Nam

b. Nhu cầu về điện, nước của dự án

* Nhu cầu về điện: Điện được sử dụng cho hoạt động của máy móc thiết bị tham gia quá trình sản xuất, hoạt động chiếu sáng, hoạt động văn phòng, sinh hoạt của cán bộ công nhân như: quạt mát, điều hòa… với tổng lượng điện sử dụng năm sản xuất ổn định vào khoảng 16.170 KW/tháng. Lượng điện tiêu thụ phục vụ hoạt động của các đơn vị thuê ước tính khoảng 13.650 KW/ tháng.

Nguồn cung cấp điện của dự án là từ nguồn cấp điện lưới của CCN Quán Đỏ.

* Nhu cầu về nước:

Trong quá trình hoạt động của hệ thống thì nước sạch được chủ dự án sử dụng cho quá trình sinh hoạt của cán bộ công nhân viên làm việc tại dự án và nhân viên làm việc tại các đơn vị vào thuê nhà xưởng; nước sử dụng cho làm mát, nước sử dụng để tưới cây, rửa đường, phòng cháy chữa cháy... với lượng nước sử dụng cho từng mục đích được thể hiện chi tiết như sau:

- Nước sử dụng cho quá trình sinh hoạt của cán bộ công nhân viên Công ty:

Khi dự án đi vào hoạt động, số lượng cán bộ công nhân viên làm việc tại dự án là khoảng 2.687 người (trong đó: Chủ dự án là 1.507 người, của đơn vị thuê xưởng là 1180 người). Lượng nước cấp cho quá trình sinh hoạt của cán bộ công nhân viên làm việc tại dự án theo TCVN 13606:2023 là 60 l/người/ca nên lượng nước cấp cho quá trình sinh hoạt của cán bộ công nhân viên làm việc tại dự án được tính như sau: QSinh hoạt = 2.687 người/ca x 0,06 m3/người/ngày = 161,22 m3/ngày;

- Nước sử dụng cho sản xuất:

Trong quá trình sản xuất, dự án sử dụng nước sạch để làm mát cho máy thổi, máy cán và hệ thống làm mát nhà xưởng. Với lượng nước làm mát sử dụng cụ thể như sau:

+ Nước sử dụng cho công đoạn làm mát máy thổi vào khoảng 65 m3/tháng ~ 2,6 m3/ngày;

+ Nước sử dụng cho công đoạn làm mát máy cán vào khoảng 50 m3/tháng ~ 2 m3/ngày;

Nước sau quá trình làm mát máy thổi, máy cán được đưa ra tháp giải nhiệt và tái sử dụng tuần hoàn. Hàng ngày Chủ dự án sẽ bổ sung thêm nước do thất thoát, hao hụt từ quá trình bay hơi (khoảng 30%) vào khoảng 1,38 m3/ngày.

+ Nước sử dụng cho hệ thống làm mát nhà xưởng vào khoảng 90 m3/ngày.

- Nước sử dụng cho tưới cây, rửa đường:

Theo QCVN 01:2021/BXD thì tiêu chuẩn cấp nước cho tưới cây là 3 lít/m2/ngày đêm và rửa đường là 0,4 lít/m2/ngày đêm. Ta có diện tích đất cây xanh của dự án là 7.010,8m2 và diện tích đất sân, đường là 8.551,9m2. Vậy nhu cầu sử dụng nước cho tưới cây, rửa đường như sau: Q  = (3 x 7.010,8) + (0,4 x 8.551,9) = 24.453 lít/ngày đêm = 24,4m3/ngày đêm.

- Nước dự trữ cho phòng cháy, chữa cháy:

Được dự trữ trong bể và chỉ sử dụng khi có hỏa hoạn.

Các chất tẩy rửa gốc nước nhập về được sử dụng trực tiếp cho các công đoạn vệ sinh, làm sạch, dự án không pha thêm nước tại công đoạn này.

Nguồn cấp nước cho quá trình hoạt động của dự án được lấy từ nguồn cấp của CCN Quán Đỏ.

>>> XEM THÊM: Dự án đầu tư nhà máy xử lý rác thải sinh hoạt và rác thải nguy hại

LẬP DỰ ÁN ĐẦU TƯ – GIẤY PHÉP MÔI TRƯỜNG – ĐĂNG KÝ MÔI TRƯỜNG – QUAN TRẮC – THAM VẤN CỘNG ĐỒNG ÁP DỤNG CHO DỰ ÁN NHÀ MÁY SẢN XUẤT BAO BÌ PLASTIC, GĂNG TAY NHỰA, ÁO CHOÀNG Y TẾ CÔNG SUẤT 30.000 TẤN/NĂM

Dự án “Nhà máy sản xuất bao bì từ plastic” được triển khai tại Cụm công nghiệp Quán Đỏ, xã Đoàn Đào, tỉnh Hưng Yên là một dự án công nghiệp nhẹ có quy mô lớn, kết hợp giữa sản xuất và dịch vụ cho thuê nhà xưởng. Với công suất 30.000 tấn sản phẩm/năm, bao gồm bao bì nhựa, găng tay nhựa và áo choàng y tế, dự án đóng vai trò quan trọng trong chuỗi cung ứng sản phẩm tiêu dùng và y tế. Bên cạnh đó, việc phát triển thêm khu nhà xưởng 5 tầng với diện tích 8.700 m² phục vụ cho thuê giúp tối ưu hóa hiệu quả sử dụng đất và tăng giá trị kinh tế.

Dự án thuộc nhóm B theo Luật Đầu tư công và được phân loại là dự án nhóm III theo Luật Bảo vệ môi trường 2020 và Nghị định 05/2025/NĐ-CP, tức là có nguy cơ tác động môi trường ở mức trung bình. Tuy nhiên, do có phát sinh khí thải, nước thải và chất thải trong quá trình sản xuất nhựa, dự án vẫn phải thực hiện lập hồ sơ xin cấp Giấy phép môi trường trước khi đi vào vận hành chính thức.

Việc lập dự án đầu tư là bước nền tảng nhằm xác định rõ quy mô, công suất, công nghệ và hiệu quả kinh tế – xã hội. Trong đó, nội dung môi trường đóng vai trò xuyên suốt, từ khâu lựa chọn công nghệ, thiết kế mặt bằng đến vận hành và quản lý. Dự án cần đảm bảo phù hợp với quy hoạch phát triển công nghiệp địa phương, đồng thời tuân thủ các tiêu chuẩn môi trường hiện hành.

Quy trình sản xuất bao bì nhựa và sản phẩm y tế từ plastic thường bao gồm các công đoạn: cấp liệu hạt nhựa nguyên sinh, gia nhiệt, đùn ép, tạo hình (thổi màng, ép phun), làm nguội, cắt, đóng gói. Đối với găng tay nhựa và áo choàng y tế, có thể bổ sung công đoạn tạo khuôn và định hình sản phẩm. Toàn bộ quy trình được thiết kế khép kín nhằm giảm thiểu thất thoát nguyên liệu và hạn chế phát sinh chất thải.

Nguồn phát sinh khí thải chủ yếu từ quá trình gia nhiệt và đùn nhựa, có thể chứa các hợp chất hữu cơ bay hơi (VOC) và mùi đặc trưng. Mặc dù sử dụng hạt nhựa nguyên sinh giúp giảm nguy cơ ô nhiễm so với nhựa tái chế, nhưng vẫn cần lắp đặt hệ thống hút và xử lý khí thải bằng than hoạt tính hoặc thiết bị hấp phụ phù hợp.

Nước thải phát sinh từ hoạt động vệ sinh thiết bị, làm mát máy móc và sinh hoạt công nhân. Thành phần nước thải chủ yếu là chất hữu cơ, dầu mỡ và cặn lơ lửng. Hệ thống xử lý nước thải cần bao gồm các công đoạn: tách dầu, điều hòa, xử lý sinh học và khử trùng trước khi xả ra môi trường hoặc tái sử dụng.

Chất thải rắn của dự án bao gồm phế liệu nhựa, bao bì và sản phẩm lỗi. Phần lớn có thể tái chế nội bộ hoặc bán cho đơn vị thu gom. Chất thải nguy hại như dầu máy, giẻ lau dính hóa chất cần được lưu giữ riêng và xử lý theo quy định.

Tiếng ồn phát sinh từ máy đùn, máy ép và hệ thống làm mát. Mặc dù không quá lớn, nhưng cần có biện pháp giảm thiểu như bố trí nhà xưởng hợp lý, sử dụng vật liệu cách âm và trồng cây xanh.

Giấy phép môi trường là công cụ pháp lý bắt buộc để kiểm soát các nguồn thải của dự án. Hồ sơ đề nghị cấp giấy phép môi trường phải bao gồm các nội dung: thông tin dự án, nguồn phát sinh chất thải, công trình xử lý, kế hoạch quan trắc và phương án ứng phó sự cố môi trường.

Điều kiện cấp giấy phép môi trường bao gồm: hệ thống xử lý chất thải đạt quy chuẩn kỹ thuật, có biện pháp giảm thiểu ô nhiễm, có chương trình quan trắc định kỳ và tuân thủ quy hoạch môi trường. Dự án thuộc thẩm quyền cấp phép của UBND tỉnh Hưng Yên.

Mẫu giấy phép môi trường thường bao gồm các nội dung chính như: thông tin chủ dự án, vị trí, công suất, nguồn thải, giới hạn xả thải, yêu cầu quan trắc và trách nhiệm thực hiện. Đây là căn cứ để cơ quan chức năng kiểm tra, giám sát hoạt động của cơ sở.

Đăng ký môi trường là thủ tục đơn giản hơn nhưng không áp dụng cho dự án này do có phát sinh khí thải và nước thải cần xử lý. Vì vậy, việc lập giấy phép môi trường là bắt buộc.

Quan trắc môi trường là hoạt động theo dõi định kỳ chất lượng môi trường trong quá trình vận hành. Các thông số cần quan trắc bao gồm: nước thải (COD, BOD, TSS), khí thải (VOC), tiếng ồn và môi trường lao động. Tần suất quan trắc thường từ 3–6 tháng/lần.

Tham vấn cộng đồng là bước quan trọng trong quá trình lập hồ sơ môi trường. Chủ dự án cần lấy ý kiến của chính quyền địa phương và người dân xung quanh về các tác động môi trường và biện pháp giảm thiểu. Nội dung tham vấn phải rõ ràng, minh bạch và được tổng hợp trong báo cáo.

Báo cáo đánh giá môi trường với xã hội và dân sinh cần phân tích các tác động tích cực như tạo việc làm, tăng thu nhập, phát triển hạ tầng; đồng thời đánh giá các tác động tiêu cực như ô nhiễm, ảnh hưởng đến môi trường sống.

Sau khi hoàn thành xây dựng, chủ dự án phải lập báo cáo hoàn thành công trình bảo vệ môi trường để xác nhận các hệ thống xử lý đã được xây dựng và vận hành đúng thiết kế. Đây là điều kiện để đưa dự án vào hoạt động chính thức.

Trong quá trình vận hành, nếu có thay đổi về công suất hoặc công nghệ, chủ dự án phải thực hiện thủ tục điều chỉnh giấy phép môi trường. Hồ sơ điều chỉnh bao gồm báo cáo giải trình, kết quả quan trắc và phương án xử lý bổ sung.

Quy trình điều chỉnh giấy phép môi trường bao gồm các bước: lập hồ sơ, nộp cơ quan có thẩm quyền, thẩm định và cấp phép điều chỉnh. Việc điều chỉnh giúp đảm bảo dự án luôn tuân thủ quy định pháp luật.

Mẫu giấy phép môi trường điều chỉnh bao gồm các nội dung: thông tin dự án, nội dung điều chỉnh, giới hạn xả thải mới và yêu cầu quan trắc. Đây là căn cứ pháp lý quan trọng trong quản lý môi trường.

Kết quả quan trắc môi trường là cơ sở để đánh giá hiệu quả của các biện pháp bảo vệ môi trường. Nếu phát hiện thông số vượt quy chuẩn, cần thực hiện các biện pháp khắc phục ngay lập tức.

Tổng thể, dự án nhà máy sản xuất bao bì plastic và sản phẩm y tế là dự án có ý nghĩa kinh tế cao, phù hợp với định hướng phát triển công nghiệp sạch. Tuy nhiên, để đảm bảo phát triển bền vững, cần thực hiện đầy đủ các yêu cầu về bảo vệ môi trường, từ lập dự án, cấp phép đến quan trắc và quản lý vận hành.

CÔNG TY CỔ PHẦN TƯ VẤN ĐẦU TƯ & THIẾT KẾ XÂY DỰNG MINH PHƯƠNG 
Địa chỉ: 28B Mai Thị Lựu - Khu phố 7, Phường Tân Định, TP.HCM
Hotline: (028 22 142 126 - 0903 649 782 
Email: minhphuong.corp@yahoo.com.vn hoặc thanhnv93@yahoo.com.vn 
Website: www.minhphuongcorp.comwww.khoanngam.com;  www.lapduan.com;

 

 

Bình luận (0)

Gửi bình luận của bạn

Captcha